За дополнительной информацией обращайтесь по телефонам 0090533 8702136 & 0090533 8702173
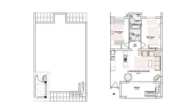
Лучшие пентхаусы на средиземноморье - единственные, имеющие по вышеобозначенной цене площадь в 200 кв.м. Как и во всех наших квартирах, в данных пентхаусах кухня представляет собой открытый план вместе с жилой комнатой, но в то же время отделена от салона барной стойкой, апартаменты имеют шикарные виды моря и гор, у обеих спален есть собственные балконы, в квартире имеются 2 душевые (одна в спальне), а также у апартаментов есть большая терраса на крыше с незабываемым видом на море180 градусов.

Блок Эмеральд
| Номер | Этаж | Спальни | Ванные | Общ.площадь m2 | Цена |
| M3/12 | Четвертый | 2 | 2 | 200 | £54.950 |
Блок Сапфир
| Номер | Этаж | Спальни | Ванные | Общ.площадь m2 | Цена |
| L3/28 | Четвертый | 2 | 2 | 200 | £54.950 |
| L3/44 | Четвертый | 2 | 2 | 200 | £54.950 |
| L3/56 | Четвертый | 2 | 2 | 200 | £54.950 |